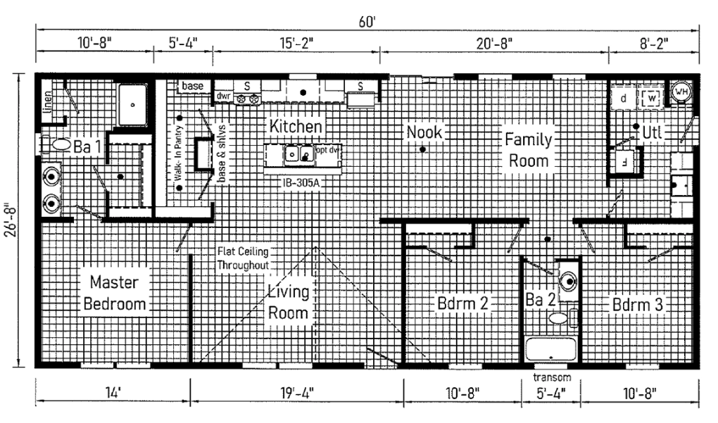
The Watertown
3 Bedroom, 2 Bath, 1600 Square Feet
Welcome to the Watertown, a spacious and wonderful new home built by Commodore. This 3 Bedroom/2 Bath, 1600 Sq Ft manufactured home has two living rooms, an oversized eat-in kitchen island and a coffee bar area! You can’t miss the huge walk-through pantry. Right off the front living room is the primary bedroom with an attached bathroom that is spa like and luxurious. Relax after a long day in the large free standing soaking tub or the tile shower! There are double sink vanities and a walk-in closet. Privacy from the primary bedroom is easy with the location of two spare bedrooms on the opposite side of the house, along with a full bathroom. The utility/laundry room features cabinets with a sink for easy clean-ups, an exterior door and laundry hook-ups. More features include a bumpout double dormer at the front door with vertical accent siding. Come take a tour today!














